成都

张飞廉

主任设计师
米兰风度—55平—日式风格

成都  二居室  55㎡

设计理念:创造更好的生活方式,展现更美的家。
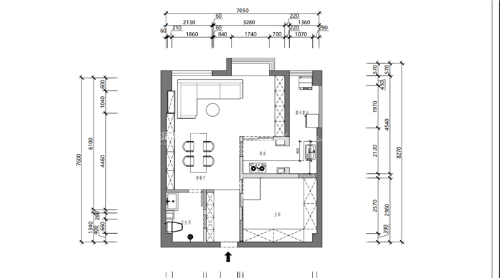
日式户型图装修效果图

这个是很有代表性的老户型,客厅、餐厅、卫生间、厨房比较小,卧室偏大,布局极不合理,通过改造后,扩大了卫生间和厨房面积,改善了厨房的采光。把储物功能做到极致,满足我们生活日常所需的所有空间。

日式客厅装修效果图
日式客厅装修效果图
日式客厅装修效果图

日式风格、原木一直都是最不能缺少的装饰元素,木头是最天然朴实的材料,原木家具和地板是不可或缺的一部分。本案采用全屋的木地板,搭配原木的家具、定制收纳、让它们呈现出最纯粹的状态。整个空间充满着生机和自然的味道。

日式卫生间装修效果图

卫生间的打造是非常关键的,业主很注重一个使用感,采用灰白色墙地砖,高级而不失温馨。采用了入墙式马桶,让空间显得更大更宽敞。充分利用起每一寸面积,是日式风格的一大特色,注重使用感和居家体验。

别人家的装修

版权所有: 四川生活家家居集团有限公司 备案号:蜀ICP备12017757号-15

加载中...

预约设计师

APPOINTMENT DESIGNER
×
免费获取装修报价
  • 报价成功137****1793面积180㎡
  • 报价成功157****7655面积130㎡
  • 报价成功177****6559面积112㎡
  • 报价成功132****7733面积150㎡
  • 报价成功139****6799面积136㎡
  • 报价成功158****9836面积110㎡
  • 报价成功139****7183面积107㎡
  • 报价成功136****7931面积89㎡
  • 报价成功137****1793面积180㎡
  • 报价成功157****7655面积130㎡
  • 报价成功177****6559面积112㎡
  • 报价成功132****7733面积150㎡
  • 报价成功139****6799面积136㎡
  • 报价成功158****9836面积110㎡
  • 报价成功139****7183面积107㎡
  • 报价成功136****7931面积89㎡
* 房屋面积:
* 手机号码: