在线咨询
免费设计
免费量房
免费验房
生活家装饰装修公司 / 户型解析

省委党院 200㎡

服务客户:0户

生活家是全国前三强的【生活家装饰集团】是一家只专注于材料的品质、环保,设计,工艺细节、售后服务的精品高端整装连锁公司。全国规模最大同时是唯一一家,从成都发展到:北京、南京、广州、无锡、福州等26个城市都有直营公司并且有自己的外贸公司、集采团队和仓储以及专业的设计施工团队,可以为你们提供全屋硬装、全屋软装以及全屋定制服务。

设计团队倾力打造.户型深度解析

用心打造龙湖源著

户型解析

设计亮点 A:空间动线流畅、 无障碍 以社交西厨、社交餐厅的空间 打造设计亮点 B:功能分区合理、主 次分明、互不干扰 休闲、娱乐、聚会的客厅餐厅、 阳台,增加互动和亲密感 设计亮点C:收纳合理设计,独 立衣帽间、入户鞋帽间 空间,私密、独立、分类收纳, 便于生活 充分的利用空间,每 个功能分区明确,互 不干扰, 合理的设计了收纳, 分类 干净整洁,便于 生活

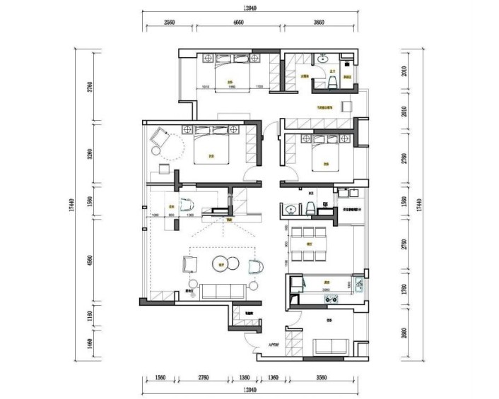
省委党院  200㎡户型解析
省委党院  200㎡户型一户型图

设计理念

做有性格又有温度的设计

Hi~ 我是小葵 装修报价可以找我哟~