在线咨询
免费设计
免费量房
免费验房
生活家装饰装修公司 / 户型解析

三里花城

服务客户:0户

生活家是全国前三强的【生活家装饰集团】是一家只专注于材料的品质、环保,设计,工艺细节、售后服务的精品高端整装连锁公司。全国规模最大同时是唯一一家,从成都发展到:北京、南京、广州、无锡、福州等26个城市都有直营公司并且有自己的外贸公司、集采团队和仓储以及专业的设计施工团队,可以为你们提供全屋硬装、全屋软装以及全屋定制服务。

设计团队倾力打造.户型深度解析

用心打造龙湖源著

户型解析

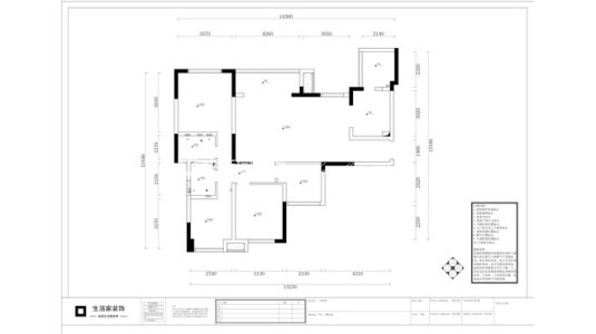
户型优点:动静分区明确,双卫增强了居家的舒适性,解决了后期居住人口增加的使用问题,一厅四室,良好的通风和采光,适宜的居家环境。 户型缺点:门厅位置方正,宽度不够,鞋柜不宜过大。 客厅走道长,容易形成空间浪费,客厅阳台使用不方便厨房门对于餐厅,餐桌不好摆放。

三里花城户型解析
三里花城户型一户型图

设计理念

客户喜欢新中式的感觉,大气,浅色中式家具,禅意韵味。在简约的造型里突出品质。

Hi~ 我是小葵 装修报价可以找我哟~